BAUHAUS1 部屋紹介
BAUHAUS 1 A号室
一世帯でワンフロアーです。A-type(駐車場は除く)
北側(画面上部)の部屋は1ルームにすることも、区切って2ルームとして使用することも可能です。
ドアも2つ付けてありますので、廊下からそれぞれ直接出入りができます。
SOHO等に最適です。A-Type 46.39㎡(14.03坪)
・寝室14.02㎡(4.24坪)
・アトリエスタジオ7.73㎡(2.33坪)
・洗面浴室5.28㎡(1.59坪)
・リビング・ダイニング・キッチン16.67㎡(5.04坪)
・玄関・廊下3.11㎡(0.94坪)
北側(画面上部)の部屋は1ルームにすることも、区切って2ルームとして使用することも可能です。
ドアも2つ付けてありますので、廊下からそれぞれ直接出入りができます。
SOHO等に最適です。A-Type 46.39㎡(14.03坪)
・寝室14.02㎡(4.24坪)
・アトリエスタジオ7.73㎡(2.33坪)
・洗面浴室5.28㎡(1.59坪)
・リビング・ダイニング・キッチン16.67㎡(5.04坪)
・玄関・廊下3.11㎡(0.94坪)
BAUHAUS 1 B号室
3Fの部屋と階段でつながっていて、メゾネット形式になっています。
このタイプは、ロフトと合わせて、3階建てのような感覚です。
洗面所との仕切りは、透明な素材を使い広さを感じさせるようにしています。
3Fに通じる階段は、壁から張り出したようになっており、浮遊感を演出しています。
B-Type 45.31平米(13.70坪)ロフト含む
・寝室8.00平米(2.42坪)
・洗面浴室4.35平米(1.31坪)
・玄関・廊下3.59平米(1.08坪)
・リビング・ダイニング・キッチン21.12平米(6.38坪)
・ロフト8.25平米(2.49坪)
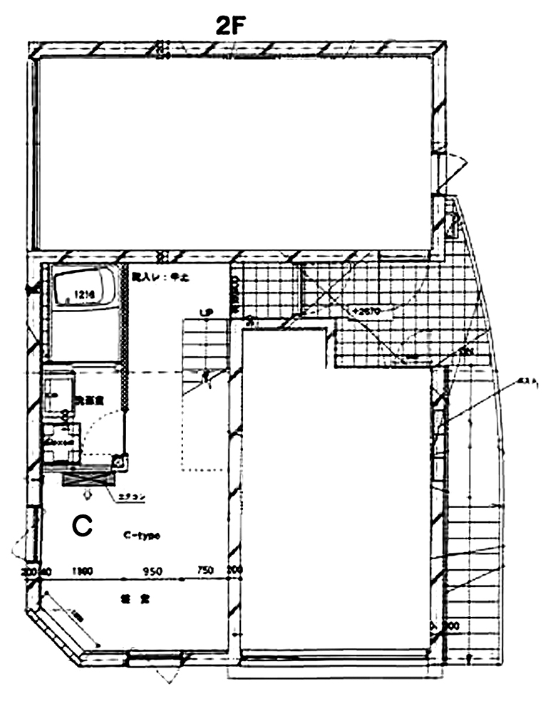
BAUHAUS 1 C号室
3Fの部屋と階段でつながっていて、メゾネット形式になっています。このタイプは、ロフトと合わせて、3階建てのような感覚。
洗面所との仕切りは、透明な素材を使い広さを感じさせるようにしています。
3Fに通じる階段は、壁から張り出したようになっており、浮遊感を演出しています。
C-Type 50.08平米(15.14坪)ロフト含む
・寝室9.67平米(2.92坪)
・洗面浴室5.05平米(1.52坪)
・玄関・廊下7.15平米(2.16坪)
・リビング・ダイニング・キッチン20.80平米(6.29坪)
・ロフト7.40平米(2.23坪)
































